Spatial
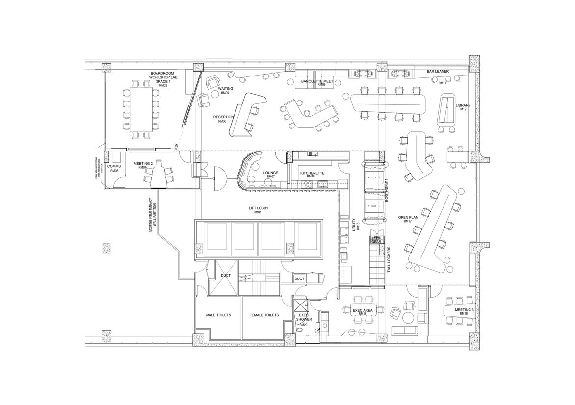
Unispace 39 Unispace Auckland Office
-
Pou Auaha / Creative Director
Sarah Langford
-
Ringatoi Matua / Design Director
Sarah Langford
-
Ngā Kaimahi / Team Members
Steve Toomath, Rosie Taylor, Jack Simmons, Neil Lao -
Client
Unispace NZ










