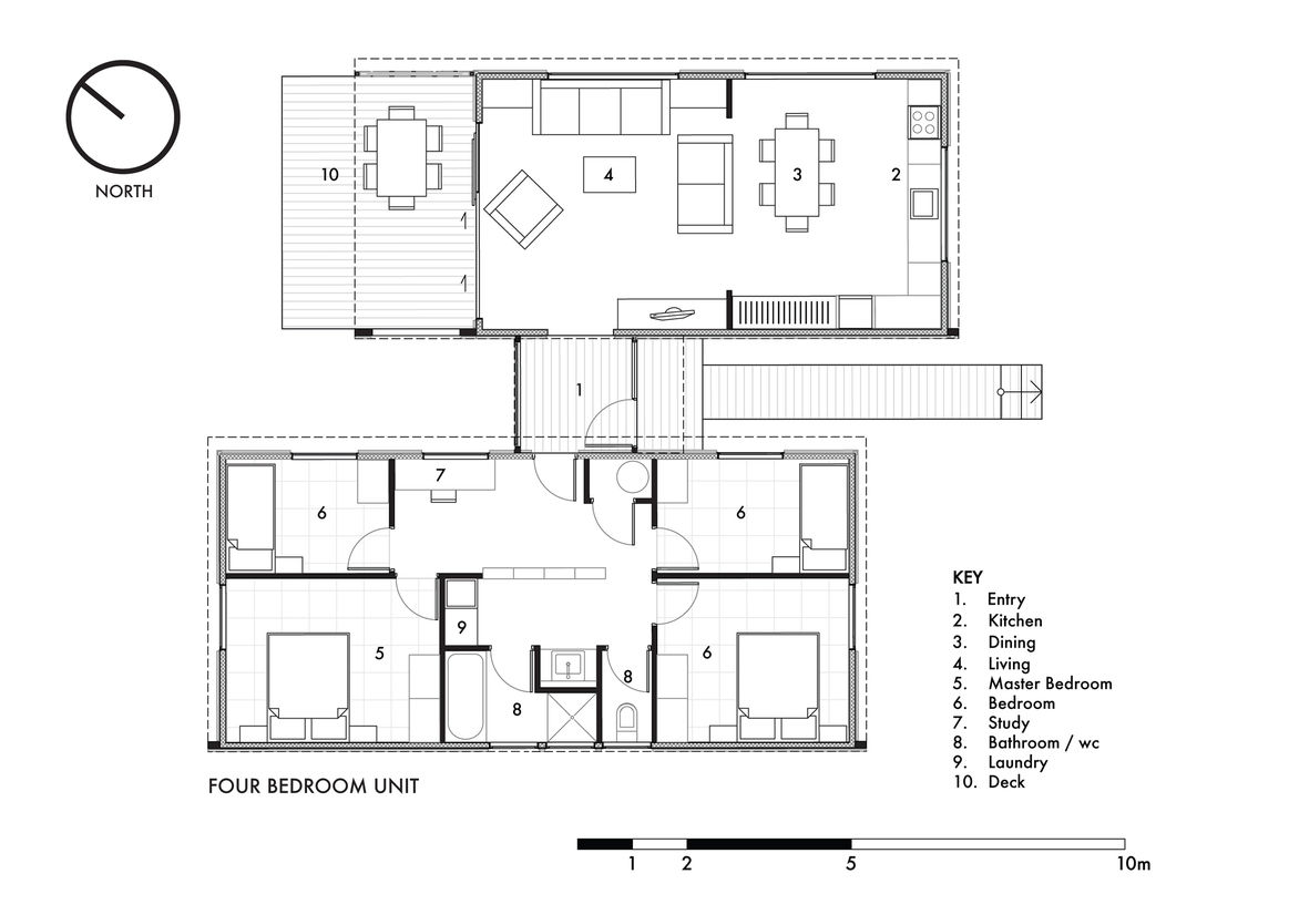
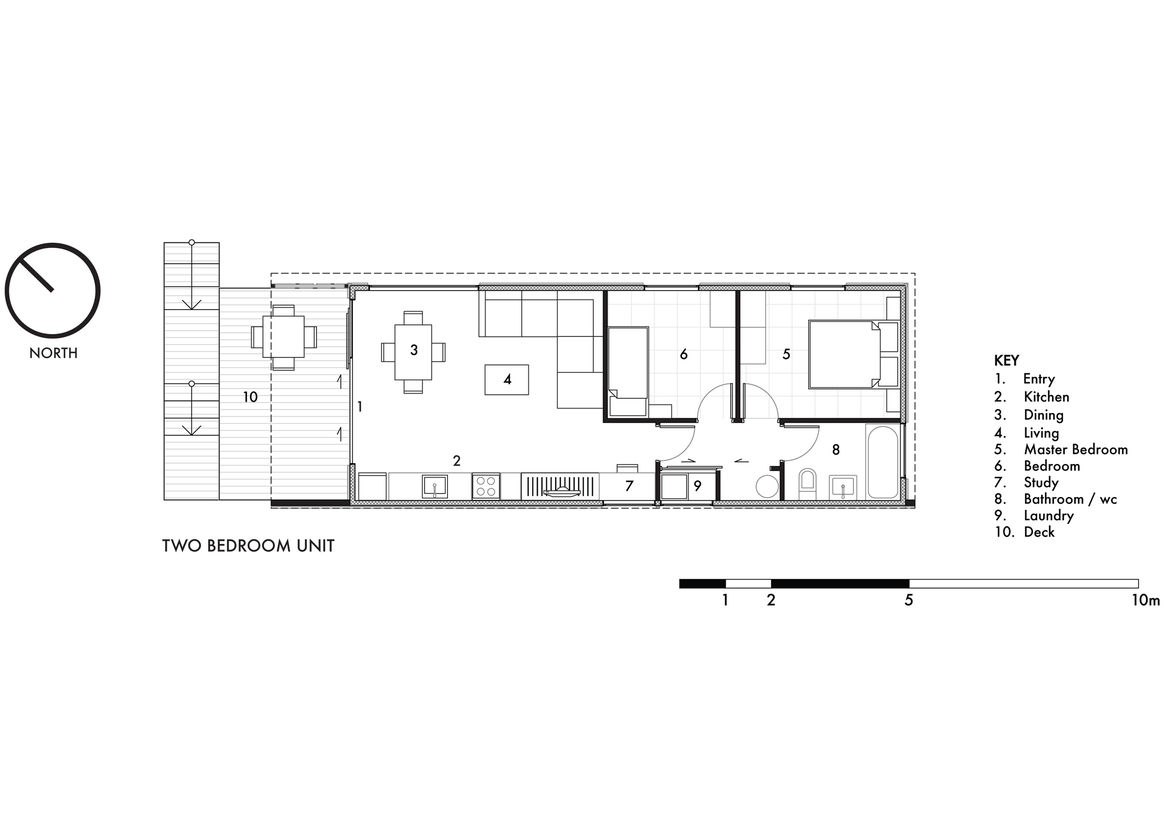
Spatial
Strachan Group Architects 2 Unitec Studio 19 Studio 19 Social Housing
-
Pou Auaha / Creative Director
Dave Strachan
-
Ringatoi Matua / Design Director
Pat de Pont
-
Ngā Kaimahi / Team Member
Unitec Student Group -
Client
VisionWest Community Trust









