The primary aim of this project was to establish an urban Papakāinga for Te Rūnanga o Ngāti Awa, emphasising a profound connection to the whenua and promoting intergenerational living. Designed to accommodate 100 residents, the project sought to fortify cultural and spiritual identity, specifically focusing on compact design, collective ownership, and communal living tailored to the community's unique requirements.
Central to our approach was a comprehensive understanding of Core Māori Values and Te Aranga Māori Design Principles, which served as the guiding framework for our design philosophy. Principles such as Kaitiakitanga, Manaakitanga, Kotahitanga, and Whanaungatanga were meticulously integrated throughout the project, influencing critical design strategies and outcomes. Additionally, the project addressed the dynamic social dynamics within family structures, ensuring flexibility and adaptability within the Papakāinga framework.
The architectural layout comprises six vertical clusters, each accommodating 16-18 extended family members in self-contained units connected by vertical circulation, thereby encouraging social interaction and cohesion. This collective ownership model facilitates flexibility in response to potential relocations, thereby sustaining community resilience.
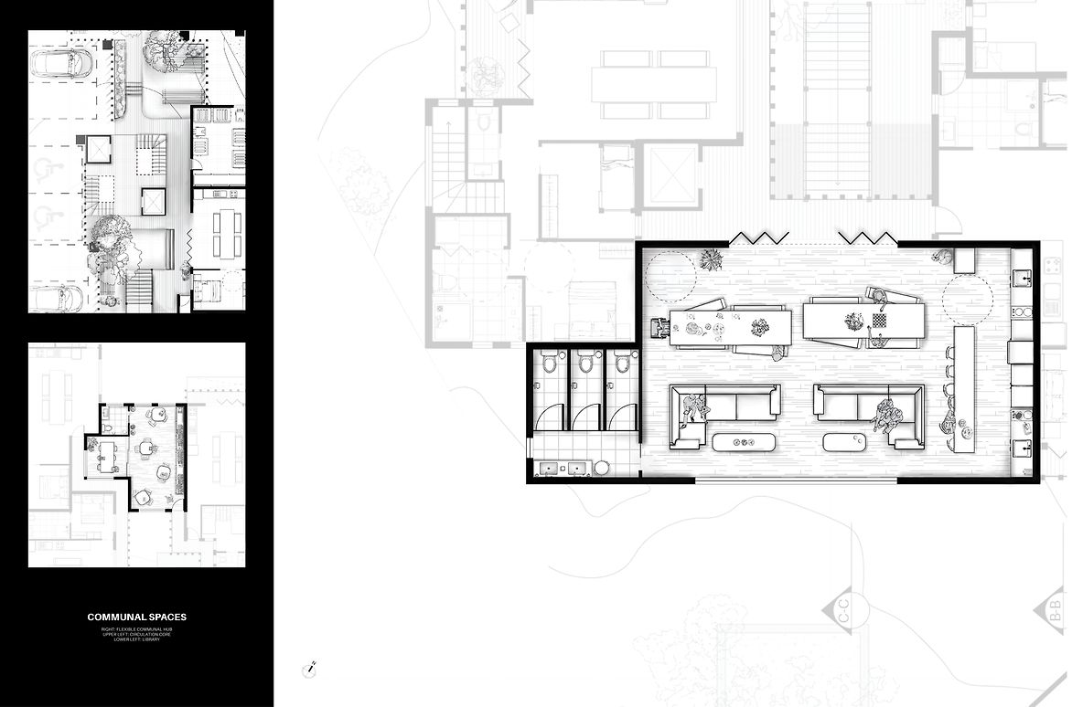
The urban Papakāinga project embodies the ethos of Māori living, focusing on inclusivity, accessibility, and adaptability to accommodate an intergenerational lifestyle that anticipates future changes. Lower levels are dedicated to kaumātua, featuring expanded spaces for accessibility, along with a larger kitchen and dining area designed to foster familial gatherings and communal interaction.
Whanaungatanga is fostered through expansive, adaptable communal spaces such as the central hub overlooking the Hāngī pit and rooftop terraces offering panoramic views towards Mt Wellington and Panmure Basin, thereby enhancing a sense of place. Manaakitanga is evident in the comprehensive accessibility features and delineation between public and private spaces. Natural elements are seamlessly integrated into the design through passive ventilation systems and rooftop gardens, promoting sustainability through agricultural cultivation.
Our integrated approach ensures that the design is not only culturally and socially enriching but also economically viable. The project supports commercial adaptability by enabling collective ownership within each cluster and offering flexibility to lease or sell individual units in response to evolving familial needs. This ensures that the Papakāinga remains responsive to the evolving needs of the community while maintaining its integrity and overarching objectives.
Description:
The primary aim of this project was to establish an urban Papakāinga for Te Rūnanga o Ngāti Awa, emphasising a profound connection to the whenua and promoting intergenerational living. Designed to accommodate 100 residents, the project sought to fortify cultural and spiritual identity, specifically focusing on compact design, collective ownership, and communal living tailored to the community's unique requirements.
Central to our approach was a comprehensive understanding of Core Māori Values and Te Aranga Māori Design Principles, which served as the guiding framework for our design philosophy. Principles such as Kaitiakitanga, Manaakitanga, Kotahitanga, and Whanaungatanga were meticulously integrated throughout the project, influencing critical design strategies and outcomes. Additionally, the project addressed the dynamic social dynamics within family structures, ensuring flexibility and adaptability within the Papakāinga framework.
The architectural layout comprises six vertical clusters, each accommodating 16-18 extended family members in self-contained units connected by vertical circulation, thereby encouraging social interaction and cohesion. This collective ownership model facilitates flexibility in response to potential relocations, thereby sustaining community resilience.
The urban Papakāinga project embodies the ethos of Māori living, focusing on inclusivity, accessibility, and adaptability to accommodate an intergenerational lifestyle that anticipates future changes. Lower levels are dedicated to kaumātua, featuring expanded spaces for accessibility, along with a larger kitchen and dining area designed to foster familial gatherings and communal interaction.
Whanaungatanga is fostered through expansive, adaptable communal spaces such as the central hub overlooking the Hāngī pit and rooftop terraces offering panoramic views towards Mt Wellington and Panmure Basin, thereby enhancing a sense of place. Manaakitanga is evident in the comprehensive accessibility features and delineation between public and private spaces. Natural elements are seamlessly integrated into the design through passive ventilation systems and rooftop gardens, promoting sustainability through agricultural cultivation.
Our integrated approach ensures that the design is not only culturally and socially enriching but also economically viable. The project supports commercial adaptability by enabling collective ownership within each cluster and offering flexibility to lease or sell individual units in response to evolving familial needs. This ensures that the Papakāinga remains responsive to the evolving needs of the community while maintaining its integrity and overarching objectives.