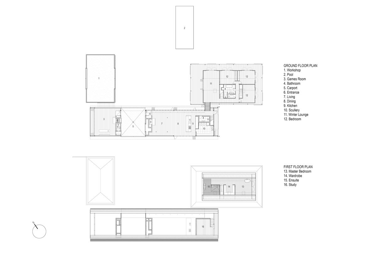
Spatial Colour Award Spatial Emerging Designer Exhibition & Temporary Structures Healthcare & Wellbeing Hospitality Lighting Design Workplace Environments Private, Public and Institutional Spaces Repurposed Spaces/ Adaptive Reuse Residential Retail Environments Spatial Design Communication & Strategy Student & Academic Spatial Built Environment (archived 2023) Rooms (archived 2015) Sustainable Spatial Design (archived 2015) Animation Digital Film Graphic Moving Image (archived 2025) Product Social Good Award Spatial Toitanga Value of Design Award User Experience Award (archived 2019) All categories Colour Award Spatial Emerging Designer Exhibition & Temporary Structures Healthcare & Wellbeing Hospitality Lighting Design Workplace Environments Private, Public and Institutional Spaces Repurposed Spaces/ Adaptive Reuse Residential Retail Environments Spatial Design Communication & Strategy Student & Academic Spatial Built Environment (archived 2023) Rooms (archived 2015) Sustainable Spatial Design (archived 2015) All years 2025 2024 2023 2022 2021 2020 2019 2018 2017 2016 2015 2014 2013 2012 2011 2010 Studio A-Z Fearon Hay Architects 27 Forest House 2016 Residential Credits Pou Auaha / Creative Directors Tim Hay, Jeff Fearon Ngā Kaimahi / Team Members Stephen de-Vrij, Michael Huh Client NA Judge's comments: Sophisticated, and rich, elegantly realizing the owners collection of timbers seemingly effortlessly.
Judge's comments:
Sophisticated, and rich, elegantly realizing the owners collection of timbers seemingly effortlessly.