Watching the densification of Tāmaki Makaurau take hold over the last decade, an adventurous couple with a long history of living on this Parnell site decided to utilise their large property in a new way. In their retirement, they had an idea for a subdivided, but shared, property. They would have their own space, while maintaining a sense of community. The aim was an enclave of buildings, each unique, but connected, in form and materiality.
Our clients had raised their children in a 1947 Gummer & Ford home on the site that was previously owned, renovated and added to by Terry Hitchcock in the 1990’s. The new home – Resonant House - is a contemporary interpretation of its Gummer & Ford/Terry Hitchcock neighbour - designed to sit quietly with its terracotta predecessor.
The existing simple gable form of the Gummer & Ford heritage home is replicated on the new home, and the clay-tiled exterior is a nod to the clay pantile wall of the existing. Black stained cedar cladding, accented in copper details, sits in contrast to the “pop” of the fiery red-orange terracotta.
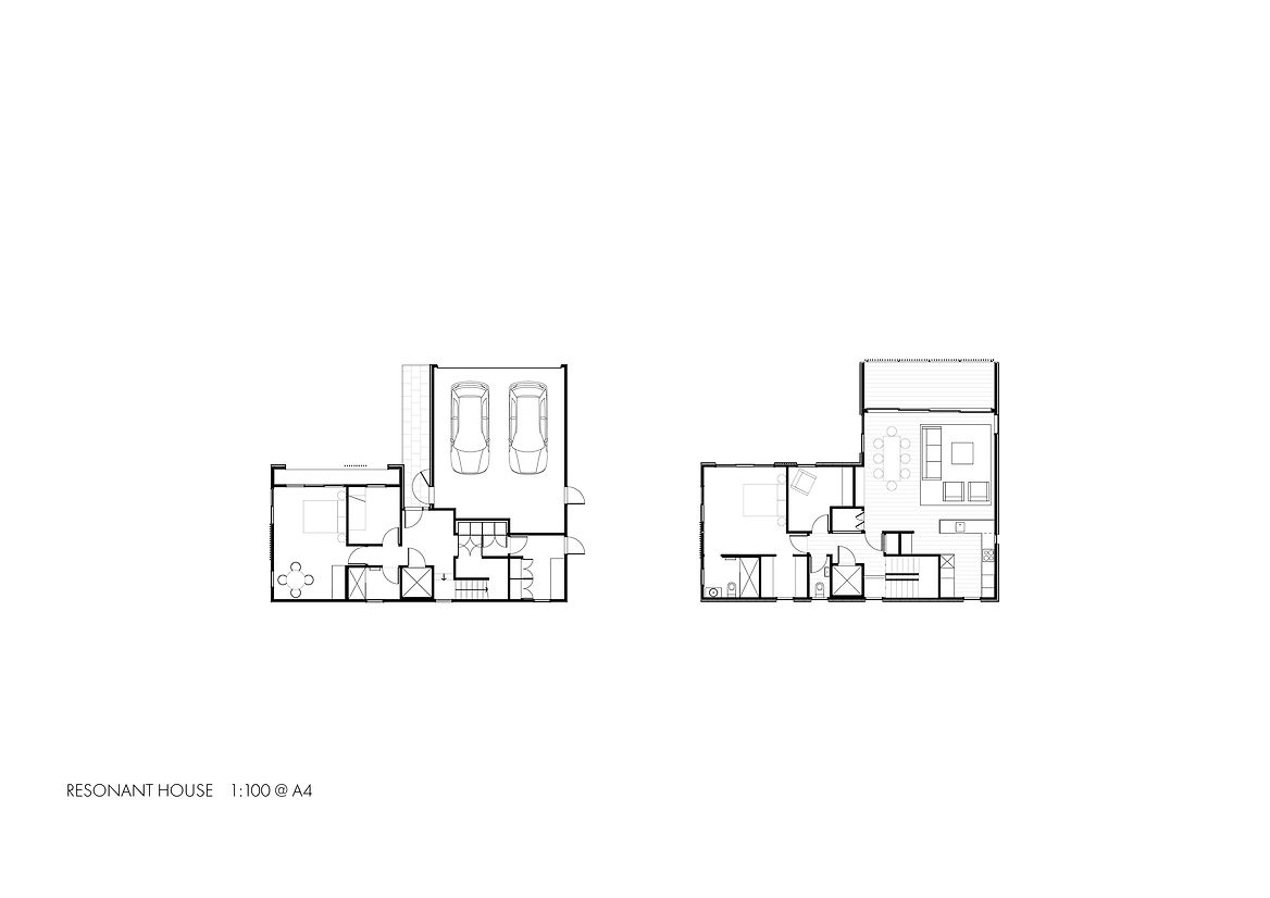
The intention is for the house to function as either a multigenerational home, with family living independently on both levels, or a house supporting aging occupation, with capacity for live-in care on the lower level. Spaces are future-proofed for mobility. Wheelchair friendly access along with a lift ensure long term occupation. The main kitchen, dining, living space, bedroom one and study are contained on level one, to take full advantage of the view, and to allow the clients to live full time upstairs. The ground level contains a guest suite complete with kitchenette which opens itself onto a garden courtyard. A guest bedroom for the grandkids along with a bathroom provides easy use for these lower-level spaces. Laundry, storage and garaging - specially designed to fit the clients’ cherished campervan is also on the ground level.
Inside is a rich interior materiality, with warm oak flooring, cedar timber walls and ceiling lining, dark stained cabinetry, and anchored by a green marble kitchen bench. A series of bespoke items were designed specifically for the clients including a perforated steel entertainment cabinet, hand-blown pendant lights moulded from the tiles used to clad the home, and a ventilation screen at the front door, abstracted from the clients’ favourite Miro plant – each item crafted in collaboration with local artisans.
Description:
Watching the densification of Tāmaki Makaurau take hold over the last decade, an adventurous couple with a long history of living on this Parnell site decided to utilise their large property in a new way. In their retirement, they had an idea for a subdivided, but shared, property. They would have their own space, while maintaining a sense of community. The aim was an enclave of buildings, each unique, but connected, in form and materiality.
Our clients had raised their children in a 1947 Gummer & Ford home on the site that was previously owned, renovated and added to by Terry Hitchcock in the 1990’s. The new home – Resonant House - is a contemporary interpretation of its Gummer & Ford/Terry Hitchcock neighbour - designed to sit quietly with its terracotta predecessor.
The existing simple gable form of the Gummer & Ford heritage home is replicated on the new home, and the clay-tiled exterior is a nod to the clay pantile wall of the existing. Black stained cedar cladding, accented in copper details, sits in contrast to the “pop” of the fiery red-orange terracotta.
The intention is for the house to function as either a multigenerational home, with family living independently on both levels, or a house supporting aging occupation, with capacity for live-in care on the lower level. Spaces are future-proofed for mobility. Wheelchair friendly access along with a lift ensure long term occupation. The main kitchen, dining, living space, bedroom one and study are contained on level one, to take full advantage of the view, and to allow the clients to live full time upstairs. The ground level contains a guest suite complete with kitchenette which opens itself onto a garden courtyard. A guest bedroom for the grandkids along with a bathroom provides easy use for these lower-level spaces. Laundry, storage and garaging - specially designed to fit the clients’ cherished campervan is also on the ground level.
Inside is a rich interior materiality, with warm oak flooring, cedar timber walls and ceiling lining, dark stained cabinetry, and anchored by a green marble kitchen bench. A series of bespoke items were designed specifically for the clients including a perforated steel entertainment cabinet, hand-blown pendant lights moulded from the tiles used to clad the home, and a ventilation screen at the front door, abstracted from the clients’ favourite Miro plant – each item crafted in collaboration with local artisans.