Spatial
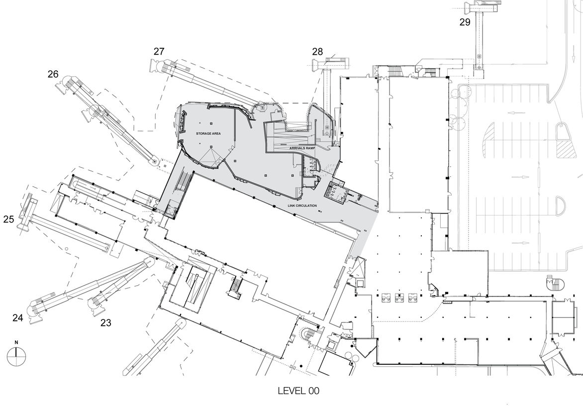
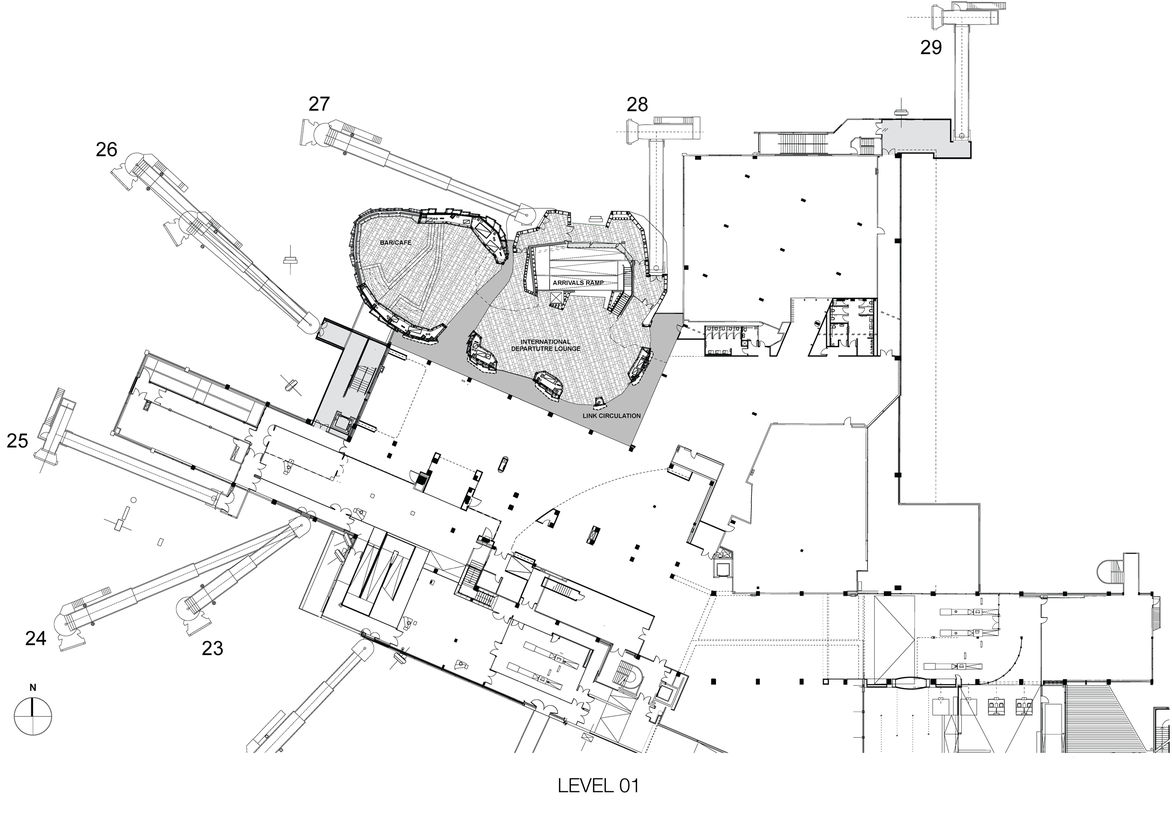
Studio Pacific Architecture in association with Warren and Mahoney Wellington International Airport (The Rock)
-
Ringatoi Matua / Design Directors
Nick Barratt-Boyes, Ralph Roberts
-
Ngā Kaimahi / Team Members
Rodney Sampson, Marcellus Lilley -
Kaitautoko / Contributors
Beca - Kirran Hira, Rider Levett Bucknall - Laurie Holyoake, Sinclair Knight Merz - Dave Riddell -
Client
Wellington International Airport Ltd









