Liminality proposes to regenerate St Dominic’s Priory in central Ōtepoti Dunedin into a mixed-use development comprising of twenty residential apartments, leased commercial spaces and a living learning center. The development aims to embody a sense of ongoing change by utilizing a historic building to create a strong community focused development for the future.
St Dominic’s Priory sits above Dunedin’s city center and is a historic fixture of Dunedin’s cityscape. It was designed by prominent Dunedin architect Francis Petre and was constructed between 1877 and 1889. At the time serving as the largest mass concrete building in the Southern Hemisphere. It is part of a religious and educational precinct of the Catholic diocese and sits beside St Joseph’s Cathedral. The Priory is a Category One Historic Place building with protective covenants in place creating parameters for adaptation. Although the building has been vacant since the 1980’s, it retains its stylised neo-gothic character.
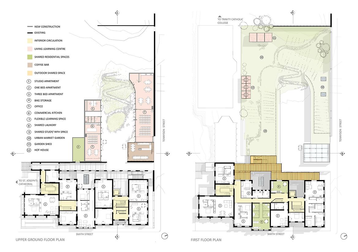
The heritage building presents several challenges, such as access and protection to facades and interior elements. These parameters have driven design responses that respect and celebrate the existing heritage fabric. The approach to the residential interiors is a key example of this response. Placing the smaller volume containing the services within the larger room allows for minimal impact to the existing elements. The smaller volume helps define and break down the larger volume into use, while maintaining daylight throughout the larger volumes. The approach is expressed through contrasting materials and negative detailing, creating a sense of separation where old surfaces meet new. The second strategy is a lightweight steel structure, this provides additional outdoor living space and exterior circulation for the apartments. Constructed of steel tube, the structure embodies a sense of impermanence and transition. The light frame and perforated decking maintain natural light to the lower levels of the Priory. This liminal space bridges between the old and the new, as well as the private and public areas. Two new public buildings are embedded into the land to the rear of the Priory. The excavation creates an extension of the cloister with an open courtyard, providing direct access from Tennyson Street into the new living learning centre and urban organic market garden. The facilities provided set out to reactivate urban communities through provision of space to come together and share knowledge and skills. The inclusion of these socially driven programmes is a key element in sustainable development of heritage sites. Integrating social aspects and values ensures the relevancy for present and future generations rather than only preserving the past. The Priory is seen as one of the most important Victorian buildings in Aotearoa, it is a symbol of its time and the values of its period. The proposed new community driven development hopes to continue this and represent the current cultural climate, through highlighting regenerative processes. Liminality bridges the gap between past and present by creating a space that facilitates new community growth in an underutilised historic building.
Description:
Liminality proposes to regenerate St Dominic’s Priory in central Ōtepoti Dunedin into a mixed-use development comprising of twenty residential apartments, leased commercial spaces and a living learning center. The development aims to embody a sense of ongoing change by utilizing a historic building to create a strong community focused development for the future.
St Dominic’s Priory sits above Dunedin’s city center and is a historic fixture of Dunedin’s cityscape. It was designed by prominent Dunedin architect Francis Petre and was constructed between 1877 and 1889. At the time serving as the largest mass concrete building in the Southern Hemisphere. It is part of a religious and educational precinct of the Catholic diocese and sits beside St Joseph’s Cathedral. The Priory is a Category One Historic Place building with protective covenants in place creating parameters for adaptation. Although the building has been vacant since the 1980’s, it retains its stylised neo-gothic character.
The heritage building presents several challenges, such as access and protection to facades and interior elements. These parameters have driven design responses that respect and celebrate the existing heritage fabric.
The approach to the residential interiors is a key example of this response. Placing the smaller volume containing the services within the larger room allows for minimal impact to the existing elements. The smaller volume helps define and break down the larger volume into use, while maintaining daylight throughout the larger volumes. The approach is expressed through contrasting materials and negative detailing, creating a sense of separation where old surfaces meet new.
The second strategy is a lightweight steel structure, this provides additional outdoor living space and exterior circulation for the apartments. Constructed of steel tube, the structure embodies a sense of impermanence and transition. The light frame and perforated decking maintain natural light to the lower levels of the Priory. This liminal space bridges between the old and the new, as well as the private and public areas.
Two new public buildings are embedded into the land to the rear of the Priory. The excavation creates an extension of the cloister with an open courtyard, providing direct access from Tennyson Street into the new living learning centre and urban organic market garden. The facilities provided set out to reactivate urban communities through provision of space to come together and share knowledge and skills. The inclusion of these socially driven programmes is a key element in sustainable development of heritage sites. Integrating social aspects and values ensures the relevancy for present and future generations rather than only preserving the past.
The Priory is seen as one of the most important Victorian buildings in Aotearoa, it is a symbol of its time and the values of its period. The proposed new community driven development hopes to continue this and represent the current cultural climate, through highlighting regenerative processes. Liminality bridges the gap between past and present by creating a space that facilitates new community growth in an underutilised historic building.