Set amidst the heart of Bannockburn, 5km southwest of Cromwell, ‘Terroir Unearthed’ is a design response to the captivating history and geography of the landscape. The Cromwell basin was shaped by glaciations, leaving lateral moraines and schist rock formations. In more recent times, gold mining scarred the hills near Bannockburn, altering the terrain with sluicing that ultimately enhanced soil for wine-growing. The vision of this project looked to create a boutique winery to respond to these two landforms. This led to two distinct buildings that would harmonize with their surroundings and reflect the region's unique history. The factory building draws inspiration from the lateral glacial moraines that charm the valley. In contrast, the cellar door and restaurant building, perched on the steeper part of the site, takes design cues from the sluicing pinnacles created by the mining activities that once defined this land. Strategically positioned at a distance from public areas, the processing building serves as the heart of the winemaking operations. Its form is characterized by a vertically-stepping curved timber-clad roof, mirroring the contours of a lateral moraine, supported by a timber lattice superstructure, while gabion basket walls beneath symbolize the fractured landscapes left by retreating glaciers. The factory layout maximizes the site's slope to use gravity flow for enhancing wine quality. Its six levels include Storage and crush pad, Pinot Noir Fermentation, Settling, Aging, Riesling Fermentation, and Bottling. The roof then extends down to ground plane, covering the loading zone. In contrast to the processing building, the tasting building is designed to be a captivating focal point. Cloaked in polycarbonate and mesh screens, it illuminates the night, offering glimpses of the lively human activity within. As visitors approach the site, they trace a path alongside the vine rows, passing by the factory building. The desire to ascend and explore is immediate. As they ascend the zigzagging footpath towards the building, an external platform appears, leading them into the tasting and restaurant level. Within this space, visitors have the option of a quick tasting or a more relaxed sit and dine. Accompanying the cellar door is a show barrel store for visitors to taste wine while connecting with the winemaking process. The restaurant, located on the northern-facing end, offers sweeping views of the Cromwell basin and the rugged mountainous backdrop. The lower ground level serves as accommodation, utilized for workers during harvest season and as a hostel-like living for seasonal workers throughout the four seasons. The steeper site of the cellar door and restaurant will be adorned with native plantings and filtration ponds. ‘Terroir Unearthed’ stands as a place of geographical reflection. It Responds architecturally to the historical landforms which has carved the land into an optimal terroir. The project's deliberate response to glaciations and gold mining has resulted in two buildings that seamlessly integrate with their surroundings. 'Terroir Unearthed' stands not just as a fine wine-producing project but as a testament to the seamless integration of architecture, landscape, and the rich heritage that defines this remarkable place.
Description:
Set amidst the heart of Bannockburn, 5km southwest of Cromwell, ‘Terroir Unearthed’ is a design response to the captivating history and geography of the landscape. The Cromwell basin was shaped by glaciations, leaving lateral moraines and schist rock formations. In more recent times, gold mining scarred the hills near Bannockburn, altering the terrain with sluicing that ultimately enhanced soil for wine-growing.
The vision of this project looked to create a boutique winery to respond to these two landforms. This led to two distinct buildings that would harmonize with their surroundings and reflect the region's unique history. The factory building draws inspiration from the lateral glacial moraines that charm the valley. In contrast, the cellar door and restaurant building, perched on the steeper part of the site, takes design cues from the sluicing pinnacles created by the mining activities that once defined this land.
Strategically positioned at a distance from public areas, the processing building serves as the heart of the winemaking operations. Its form is characterized by a vertically-stepping curved timber-clad roof, mirroring the contours of a lateral moraine, supported by a timber lattice superstructure, while gabion basket walls beneath symbolize the fractured landscapes left by retreating glaciers. The factory layout maximizes the site's slope to use gravity flow for enhancing wine quality. Its six levels include Storage and crush pad, Pinot Noir Fermentation, Settling, Aging, Riesling Fermentation, and Bottling. The roof then extends down to ground plane, covering the loading zone.
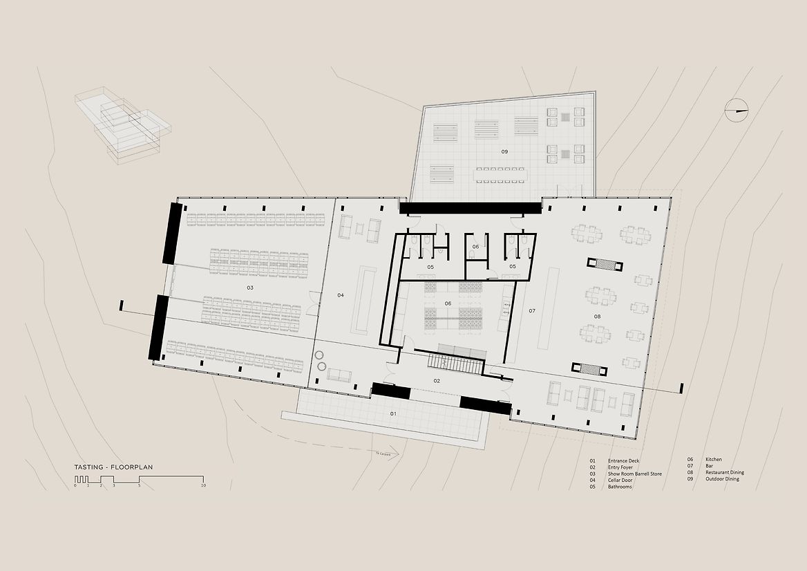
In contrast to the processing building, the tasting building is designed to be a captivating focal point. Cloaked in polycarbonate and mesh screens, it illuminates the night, offering glimpses of the lively human activity within. As visitors approach the site, they trace a path alongside the vine rows, passing by the factory building. The desire to ascend and explore is immediate. As they ascend the zigzagging footpath towards the building, an external platform appears, leading them into the tasting and restaurant level.
Within this space, visitors have the option of a quick tasting or a more relaxed sit and dine. Accompanying the cellar door is a show barrel store for visitors to taste wine while connecting with the winemaking process. The restaurant, located on the northern-facing end, offers sweeping views of the Cromwell basin and the rugged mountainous backdrop. The lower ground level serves as accommodation, utilized for workers during harvest season and as a hostel-like living for seasonal workers throughout the four seasons. The steeper site of the cellar door and restaurant will be adorned with native plantings and filtration ponds.
‘Terroir Unearthed’ stands as a place of geographical reflection. It Responds architecturally to the historical landforms which has carved the land into an optimal terroir. The project's deliberate response to glaciations and gold mining has resulted in two buildings that seamlessly integrate with their surroundings. 'Terroir Unearthed' stands not just as a fine wine-producing project but as a testament to the seamless integration of architecture, landscape, and the rich heritage that defines this remarkable place.