Textured Bach is an artwork that is lived in, a celebration of one of the seven elements of art, texture. All surfaces (inside and out) heighten the awareness of space and place with the gentle diffusion of light and interest of form.
The family, having spent most holidays renting other people’s beach houses, decided to make a sea change. Relocating from a large city to a coastal town they set out to create a relaxed space as their permanent dwelling where they could live everyday feeling like they are on holiday. The dwelling was to be a sculptural creation inside and out to contain and facilitate artistic works.
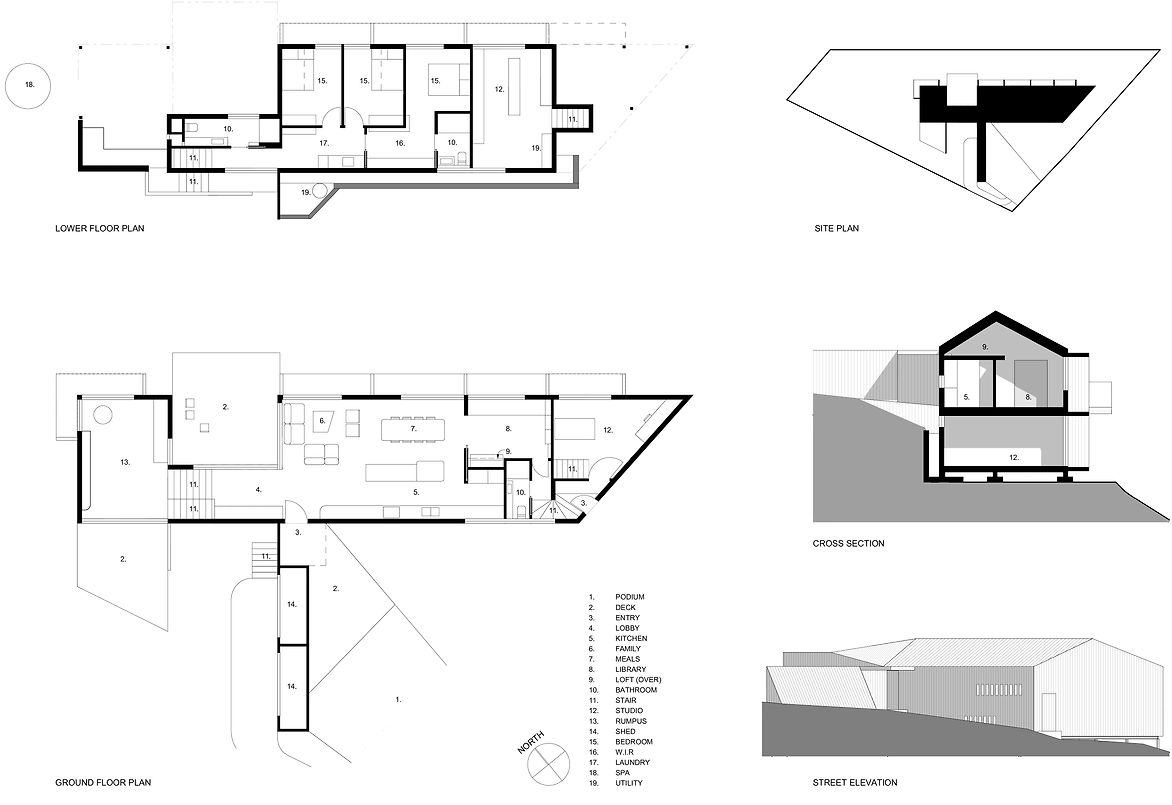
Conceptually envisaged as a burnt, chiselled timber sculpture nestled into the side of the natural hill scape, the black architecture and green landscaping were inspired by the native New Zealand forests that used to cover much of the port hills. The interior materials and hues were chosen to provide a quiet backdrop to the constantly changing artworks created by the entire family. The house features much of the family’s ceramic and fine art works throughout.
This high performing environmentally sustainable house uses very little energy input while providing an inspiring environment to occupy
Description:
Textured Bach
Texture: one of the seven elements of art
Bach: a small, often modest holiday / beach home
Textured Bach is an artwork that is lived in, a celebration of one of the seven elements of art, texture. All surfaces (inside and out) heighten the awareness of space and place with the gentle diffusion of light and interest of form.
The family, having spent most holidays renting other people’s beach houses, decided to make a sea change. Relocating from a large city to a coastal town they set out to create a relaxed space as their permanent dwelling where they could live everyday feeling like they are on holiday.
The dwelling was to be a sculptural creation inside and out to contain and facilitate artistic works.
Conceptually envisaged as a burnt, chiselled timber sculpture nestled into the side of the natural hill scape, the black architecture and green landscaping were inspired by the native New Zealand forests that used to cover much of the port hills. The interior materials and hues were chosen to provide a quiet backdrop to the constantly changing artworks created by the entire family. The house features much of the family’s ceramic and fine art works throughout.
This high performing environmentally sustainable house uses very little energy input while providing an inspiring environment to occupy